Nông trại thập niên 80 “lột xác” nhờ giữ lại mái ngói đỏ và cấu trúc nguyên bản
Giữa những ngọn đồi xanh mát, ngôi nhà nông trại rộng 600 m2 được cải tạo theo hướng tôn trọng kiến trúc thập niên 80. Mái ngói đất sét, mặt bằng chữ U và hiên rộng được giữ lại, trong khi không gian sống mở ra, chan hòa ánh sáng và thiên nhiên.
Giữ gìn cốt cách kiến trúc thập niên 80
Thay vì đập bỏ hoàn toàn để chạy theo xu hướng mới, đội ngũ kiến trúc sư đã chọn cách tiếp cận tôn trọng quá khứ, giữ lại những đường nét đặc trưng nhất đã làm nên linh hồn của ngôi nhà cũ.
Toàn cảnh nông trại ẩn mình giữa những ngọn đồi rợp bóng cây xanh mát. Nguồn: Archdaily
Cấu trúc hình chữ U nguyên bản và hệ mái ngói đất sét được bảo tồn trọn vẹn. Nguồn: Archdaily
Ngôi nhà nằm giữa cảnh quan thiên nhiên trù phú, giữ lại vẻ đẹp mộc mạc của kiến trúc trang trại thập niên 80. Nguồn: Archdaily
Các hạng mục mang tính nhận diện cao như mái ngói đất sét, hệ mái hiên rộng và cấu trúc mặt bằng hình chữ U nguyên bản đều được bảo tồn nguyên vẹn.
Hệ mái hiên rộng đặc trưng giúp che chắn nắng mưa và tạo khoảng đệm không gian lý tưởng. Nguồn: Archdaily
Những hàng cột gạch mộc và mái ngói đỏ tạo nên nét hoài cổ, bình yên cho công trình. Nguồn: Archdaily
Mục tiêu là tạo ra một trải nghiệm sống trôi chảy hơn, xóa bỏ sự ngăn cách cứng nhắc thường thấy trong các ngôi nhà cũ để các khu vực chức năng có sự kết nối liền mạch.
Hành lang dài chạy dọc theo ngôi nhà được giữ nguyên, kết nối các không gian chức năng. Nguồn: Archdaily
Ánh nắng chiều tạo nên những vệt sáng tối nghệ thuật dọc theo hành lang lát gạch. Nguồn: Archdaily
Biến nhà bếp thành trái tim của không gian sống
Điểm nhấn thay đổi lớn nhất nằm ở khu vực sinh hoạt chung, nơi ranh giới giữa không gian trong nhà và sân vườn dường như bị xóa nhòa hoàn toàn nhờ giải pháp cửa thông minh.
Góc nhìn từ bàn ăn hướng ra sân trong, nơi thiên nhiên ùa vào nhà qua hệ cửa mở rộng. Nguồn: Archdaily
Khu vực bếp nấu nay đã trở thành trái tim của dự án, được đặt ở vị trí trung tâm, nằm giữa phòng ăn và phòng giải trí. Không gian mở toang ra sân trong thông qua hệ cửa trượt khổ lớn kết hợp kính và gỗ. Thiết kế giúp giải phóng tầm nhìn, đưa thiên nhiên ùa vào nhà. Để tạo sự liền mạch thị giác, kiến trúc sư sử dụng gạch bông thủy lực với tông màu của đất địa phương, lát xuyên suốt kết nối các không gian, củng cố sự liên tục giữa trong và ngoài.
Căn bếp hiện đại với hệ tủ gỗ và đảo bếp bằng đá cẩm thạch trắng sang trọng. Nguồn: Archdaily
Bếp nằm ở vị trí trung tâm, kết nối trực tiếp với bàn ăn và khu vực sinh hoạt chung. Nguồn: Archdaily
Khu vực bàn ăn rộng rãi, tràn ngập ánh sáng tự nhiên và cây xanh. Nguồn: Archdaily
Sự kết nối liền mạch giữa phòng khách, phòng ăn và không gian bên ngoài. Nguồn: Archdaily
Vật liệu tự nhiên và giải pháp lấy sáng tinh tế
Sự tinh tế trong việc lựa chọn vật liệu ốp lát và điều chỉnh kích thước các ô cửa đã mang lại cảm giác ấm cúng, sang trọng thầm lặng cho không gian nghỉ ngơi của gia chủ.
Không gian phòng khách rộng lớn với sàn gỗ thay thế cho nền đá cũ. Nguồn: Archdaily
Bộ sofa màu trắng kem trang nhã làm nền cho các chi tiết nội thất gỗ và tranh nghệ thuật. Nguồn: Archdaily
Các phòng ngủ và phòng tắm vẫn giữ nguyên vị trí ban đầu nhưng được khoác lên mình diện mạo mới nhờ các vật liệu tự nhiên, ấm áp. Sàn gỗ đã thay thế cho nền đá phiến cũ kỹ ở cả khu vực sinh hoạt chung và riêng tư. Trong khi đó, phòng tắm toát lên vẻ đẹp thanh lịch nhờ sự kết hợp giữa đá cẩm thạch trắng nội địa và gỗ thông đặc.
Phòng tắm được cải tạo lại với vẻ đẹp hiện đại, kết hợp giữa gỗ và đá ốp tường sáng màu. Nguồn: Archdaily
Đặc biệt, các khung cửa sổ vẫn giữ màu xanh lục địa phương đặc trưng nhưng được mở rộng kích thước, cho phép ánh sáng và gió trời lưu thông nhẹ nhàng, dồi dào khắp ngôi nhà.
Phòng ngủ với khung cửa sổ lớn màu xanh lục, mở rộng tầm nhìn ra khu vườn xanh mát. Nguồn: Archdaily
Nội thất phòng ngủ tối giản, đề cao sự thư giãn với ánh sáng tự nhiên ngập tràn. Nguồn: Archdaily
Khu vực tiếp khách phụ với bộ sofa màu vàng mù tạt nổi bật trên nền sàn gỗ. Nguồn: Archdaily
Màu sắc nội thất rực rỡ tạo điểm nhấn vui tươi, đối lập với sự tĩnh lặng của kiến trúc. Nguồn: Archdaily
Một góc thư giãn đầy phong cách với chiếc ghế bành màu cam đất ấn tượng. Nguồn: Archdaily
Ghế ngồi bên hiên nhà, nơi gia chủ có thể tận hưởng không khí trong lành. Nguồn: Archdaily
Bức tranh nghệ thuật khổ lớn với màu sắc sống động là điểm nhấn cho phòng khách. Nguồn: Archdaily
Khu vực sảnh đón với bàn gỗ mộc mạc và các vật dụng trang trí tinh tế. Nguồn: Archdaily
Sân trong xanh mát tạo nên một ốc đảo riêng tư cho ngôi nhà. Nguồn: Archdaily
Cây xanh được trồng sát hiên nhà, xóa mờ ranh giới giữa nội thất và ngoại thất. Nguồn: Archdaily
Những khung cửa sổ như những bức tranh thiên nhiên sống động thay đổi theo mùa. Nguồn: Archdaily
Góc hiên nhà yên tĩnh với chiếc ghế da bò, nơi thời gian như ngừng trôi. Nguồn: Archdaily
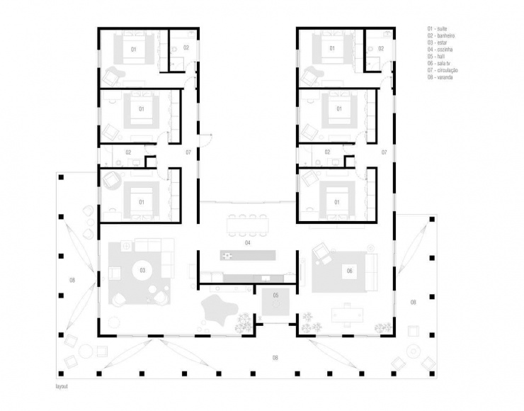
Bản vẽ mặt bằng bố trí nội thất tổng thể của ngôi nhà. Nguồn: Archdaily
Chỉ với hoa tươi, nến và một số vật dụng sẵn có, không gian dùng bữa tại nhà trở nên lãng mạn hơn vào ngày 14/2.
Nguồn: [Link nguồn]
-14/02/2026 10:00 AM (GMT+7)



























